უფასო
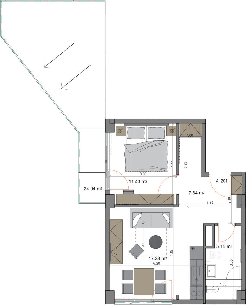
ბინა 201
ბლოკი
და
სართული
2
ინტერიერი m 2
41.25 მ 2
გარე მ 2
24.04 მ 2
საერთო ფართობი მ 2
65.29 მ 2
შესყიდვის ფასი
174 617
წლიური მოსავლიანობა
10,477.02 ევრო
სიამოვნებით დაგეხმარებით - დაგვიკავშირდით
შეუთავსეთ მომგებიანი ინვესტიცია დასვენებას საქართველოში. დაგვიკავშირდით და აღმოაჩინეთ უძრავი ქონება საუკეთესო ადგილებში მაღალი შემოსავლით .

დოქტორი ვიქტორ ჩუმაკოვი, ბიზნესის ადმინისტრირების მაგისტრი (MBA), დოქტორი ვიქტორ ჩუმაკოვი
გაყიდვების ხელმძღვანელი

ანა მაკალათია, ბიზნესის ადმინისტრირების მაგისტრი (MBA),
ანგარიშის მენეჯერი

დიანა რომანოვა
საერთაშორისო გაყიდვები | ესპანეთის ბაზარი



