უფასო
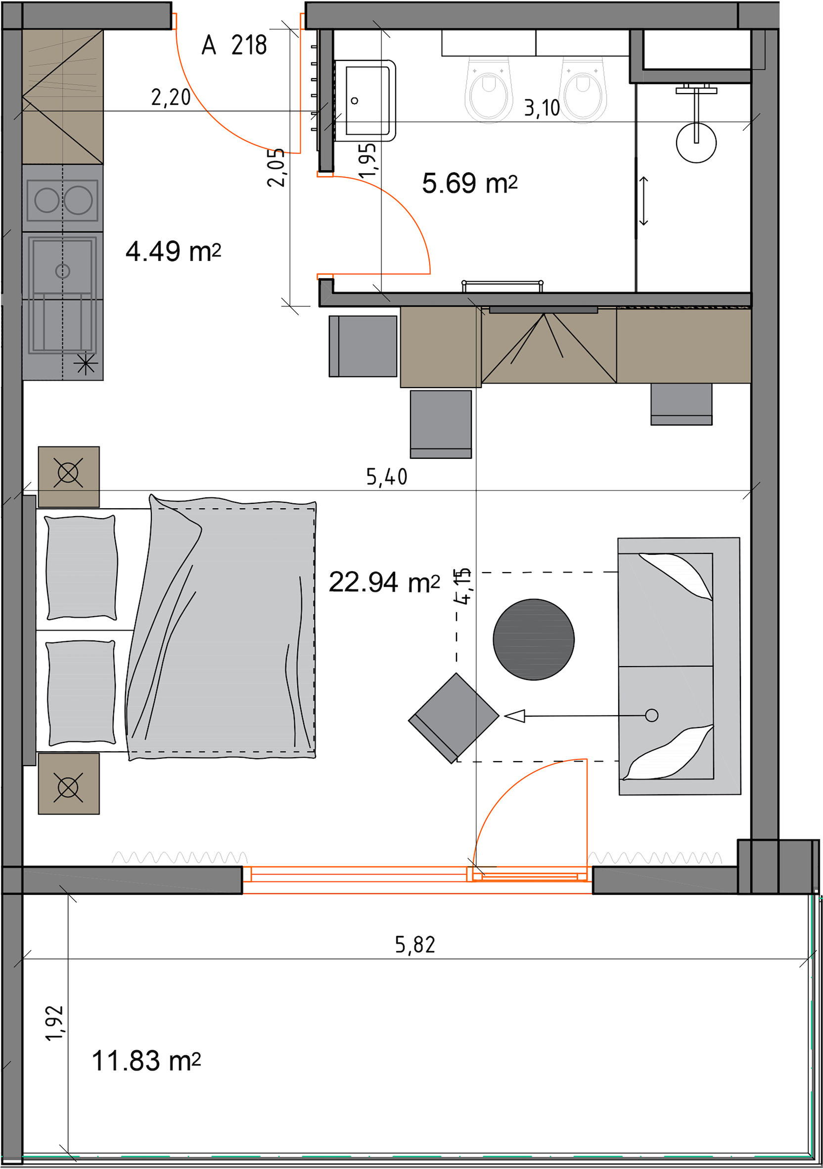
ბინა 218
ბლოკი
ბ
სართული
2
ინტერიერი m 2
33.12 მ 2
გარე მ 2
11.83 მ2
საერთო ფართობი მ 2
44.95 მ 2
შესყიდვის ფასი
133 009
წლიური მოსავლიანობა
7,980.54 ევრო
სიამოვნებით დაგეხმარებით - დაგვიკავშირდით
შეუთავსეთ მომგებიანი ინვესტიცია დასვენებას საქართველოში. დაგვიკავშირდით და აღმოაჩინეთ უძრავი ქონება საუკეთესო ადგილებში მაღალი შემოსავლით .

დოქტორი ვიქტორ ჩუმაკოვი, ბიზნესის ადმინისტრირების მაგისტრი (MBA), დოქტორი ვიქტორ ჩუმაკოვი
გაყიდვების ხელმძღვანელი

ანა მაკალათია, ბიზნესის ადმინისტრირების მაგისტრი (MBA),
ანგარიშის მენეჯერი

დიანა რომანოვა
საერთაშორისო გაყიდვები | ესპანეთის ბაზარი



