Available
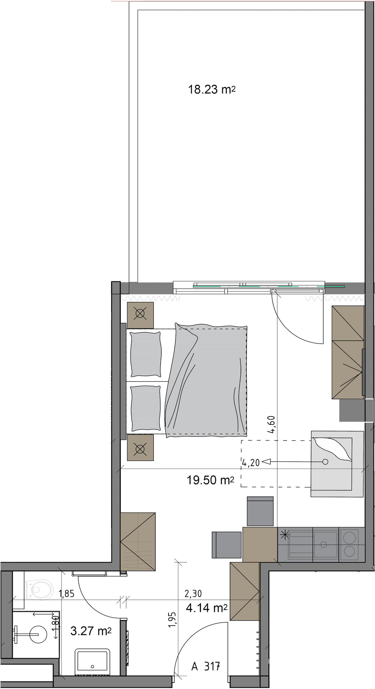
Apartment 317
Block
B
Floor
3
Interiorm2
26.91m2
Exteriorm2
18.23m2
Total aream2
45.14m2
Purchase price
126 316
Yield p.a.
7 578,96 €
We're happy to help – give us a call
Combine a profitable investment with relaxation in Georgia. Contact us and discover properties in prime locations with high returns.

Dr. Viktor Chumakov, MBA
Head of Sales

Ana Makalatia, MBA
Account Manager

Diana Romanova
International Sales | Spanish Market



